Screen Shot 2021-02-24 at 9.59.11 AM.png
 Manhattan's current transportation infrastructure
 Transportation proposal:  utilizing the Hudson River
 Proposed water taxi and bike share:  connecting modes of transportation along the periphery
Render_5_072012.jpg
render38_3.jpg
Render Taxi Perspective__2_072012.jpg
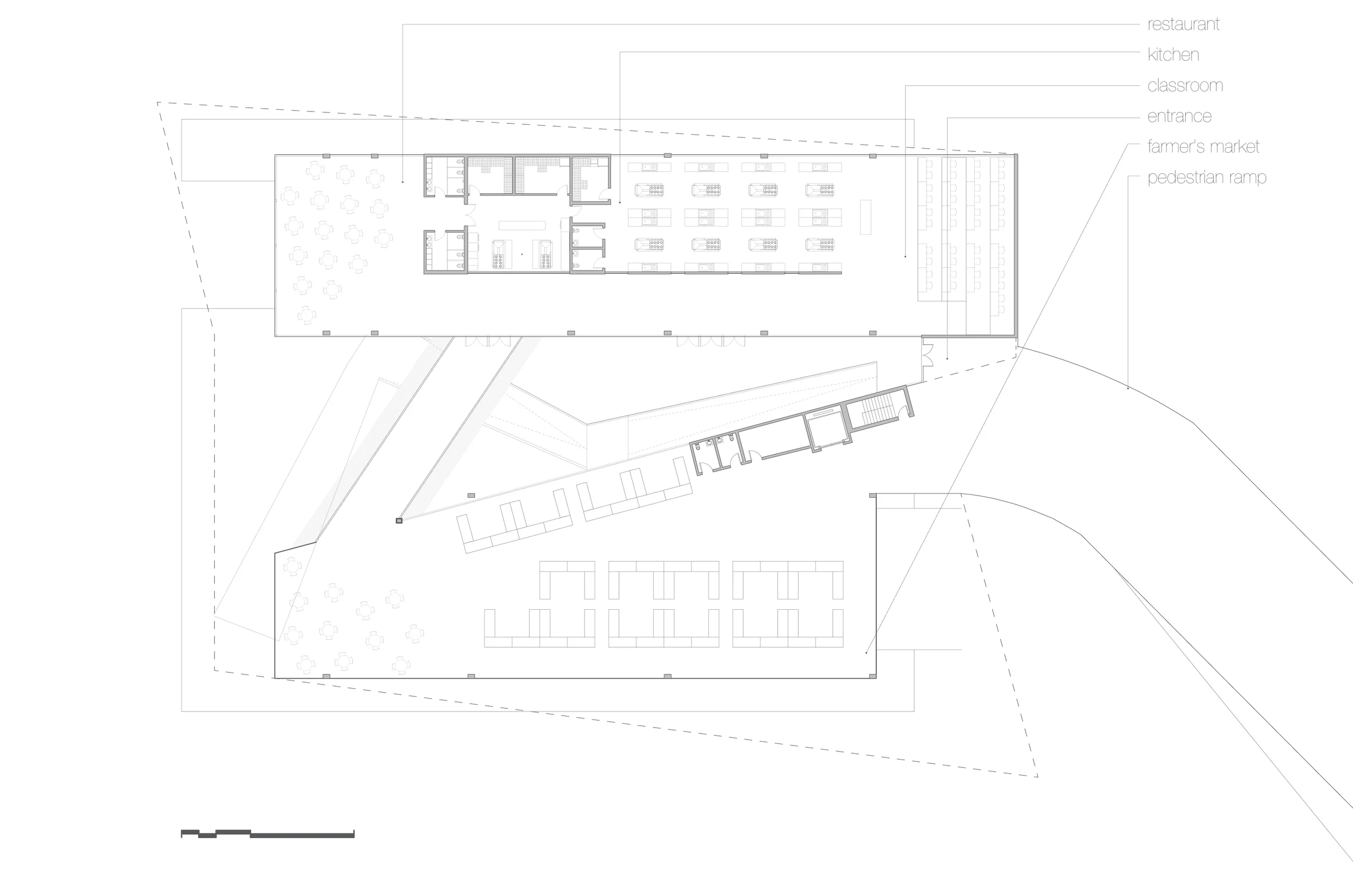
 Proposed site plan:  circulation of transportation methods
07-20-11-Plan Upper.jpg
07-21-11-Plan Lower_2.jpg
11-14-11_Plan Diagrams.jpg
retrofitting the existing transfer station structural frame
prev / next